新築戸建

新築戸建
岡山市中区海吉2015-8
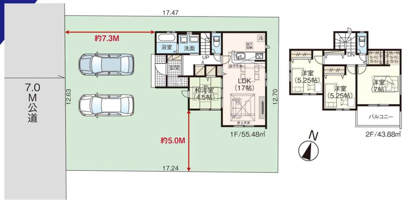
4LDK
3,290万円
219.86㎡(66.51坪)
99.36㎡(30.06坪)
JR山陽本線「岡山」駅 バス28分
7万円台
条件:変動金利0.60%・40年返済
グラファーレ岡山市中区海吉7期(1号棟)/新築建売住宅
岡山市中区海吉2015-8
3,290万円
JR山陽本線「岡山」駅 バス28分
2026年6月
4LDK
LDK17/洋4.5/洋5.25/洋5.25/洋7
木造
2台
所有権
宅地
219.86㎡(66.51坪)
99.36㎡(30.06坪)
第一種低層住居専用地域
50%
100%
西側約7.0m
公営
公共
都市ガス
建築中
相談
富山小学校
富山中学校
一般媒介
TVモニター付きインターホン/1坪バス/24時間換気/ベタ基礎/浴室乾燥機/床下収納/ペアガラス/10年保証(瑕疵保証)
■住宅性能表示取得物件(6項目すべてで最高等級!!)
・耐震等級3(倒壊のしにくさ)
・耐震等級3(損傷のしにくさ)
・ホルムアルデヒド発散等級3
・耐風等級2
・維持管理対策等級3
・劣化対策等級3
・一次エネルギー消費量対策等級
■ZEH水準
・高断熱住宅です
■長期優良認定住宅
■IDS工法(スケルトンインフィル住宅)
ライフスタイルの変化に住まいが対応!!
お部屋を広げるなどの間取りのリデザインが可能に!!
9:00〜18:00/水曜日・夏季休暇・年末年始
岡山市中区四御神316-4
3,180万円
4LDK
2026年4月
JR山陽本線「東岡山」駅 徒歩23分
岡山市中区江並176-15
2,160万円
4LDK
2025年12月
JR山陽本線「岡山」駅 バス32分
岡山市中区江並28-13
2,499万円
4LDK
2025年12月
JR山陽本線「岡山」駅 バス32分
新着・更新情報をおしらせ
COMMENT
人気のグラファーレシリーズ!
こちらの物件は2026年6月完成予定です!
→資料請求・ご相談は下記フォームよりお気軽にどうぞ!
■ローコストかつ「確かな品質」で安心住まい
■住宅保証制度(長期10年~最大35年保証)
■安心の無料定期点検付き(6ヶ月目・2年目)
■IDS工法(スケルトンフィル住宅)
■住宅性能表示「設計」&「建設」ダブル取得
■耐震等級3(最高等級)
■ホルムアルデヒド対策等級3(最高等級)
■フラット35S(金利A)適合
【お問合せ】
エスケイ住宅販売(株)
TEL:086-245-5515(担当:白川)まで
「ホームページを見た」とお伝えください!